Gibran Nurjaman
Introduction
The awakening of Galashiels’ as a Place Identity to be shared among the borders.

The aim of this project is to leverage the Galashiels’ local identity as the central of Scottish Borders. Re-awaken it among the people of Galashiels and to be shared among the visitors. The series of architectural and landscape design intervention are proposed to give the Galashiels’ forms, activities, and diffusion of Identity to be renown. To keep people staying and make a living in Galashiels.
The Issue
Lack of Identity, space and place is the first impression of me taking first ever step on Galashiels. As the Centre of the Scottish Borders Council Area, the town is lack of information signage, nodes, and sense of arrival. Narrow road motorway access to the city, and just a bus stop, separated the bus travel from Edinburgh to the town. Almost no information about the city can be obtain, just by doing the sightseeing in the town.
The rich history of Galashiels are not well-informed to the young people of Galashiels and so do to the visitors, making the lack of identity become loss.
The latest Institution built, the Heriot-Watt University, School of Textiles and Design is pretty much re-leverage the fame of this town. The famous local textiles industry knowledge and production in the past embodied in the form of the higher educational facility.
The upcoming Railway line from Edinburgh to Galashiels as the infrastructure improvement bringing new hope of the town to leverage the town’s sustainability. But then again, with the current facility in town, do Galashiels really ready to overcome the impact of Railway line in order to be sustained as a town?
Ms. Sue Thomas from Heriot-Watt University mentions that; with the upcoming railway line from Edinburgh to Galashiels, people in Galashiels are anxious about the possibility that people will just commute to Edinburgh to find a better opportunity in jobs and education as well as living. Leaving Galashiels empty of productive age people to run business in town in which makes the quality of academic lifestyle Heriot-Watt University needs in Galashiels decreased.
Peter Gilchrist from Heriot-Watt University Students Union then added that currently, students are commuting every weekend to find leisure in other city such as Glasgow and Edinburgh because of less hype entertainment happend in town. With the upcoming railway line, maybe even the student completely leaving Galashiels to live in other city and commute to Galashiels just to attend classes.
Case Studies
1. Dawyck Gateway, Simpson and Brown Architects
The low-lying structure acts as a screen between the busy car park and the tranquil garden, allowing only glimpses of the arboretum through the building, expressing the gateway and heightening the visitors’ sense of expectation.
Several awards such as: The Bronze Medal for the Best Public Building at the Roses Design Awards 2008, shortlisted for the prestigious RIAS Andrew Doolan Award 2008 and was awarded the Best New Building Award at the Scottish Borders Council Design Awards 2009. Dawyck was recently awarded the coveted VisitScotland 5 star status, making it the first garden in Scotland to achieve world class recognition. The project able to leverage tourism of Dawyck.
The Urban deck of park strip, accommodate people to enjoy urban landscape, Galashiels has a potential of stunning natural landscape to explore, and the roof of GalaGait can accommodate a sneak peak and a Gate to enjoy the scene.

The intense community participation in the form of workshops and presentations throughout the design process makes the project received praise and acclaim, and has also been well used and loved by local residents as well as tourist. The High-Line’s long-term economical and ecological goals have made a significant contribution to the advancement of economic, ecological and sustainable design.
The Proposal
The workshop session of participatory proofed to be the bucket of people aspiration for their own community, result of their everyday life. As the summary, several ideas are proposed.
People are identify their issues and how and where the intervention should be occurred. The Town centre is the area in which people think that the most effective place to make intervention. One of the urgent needs is to give Information about sense of place and Identity of Galashiels, The GalaGait.
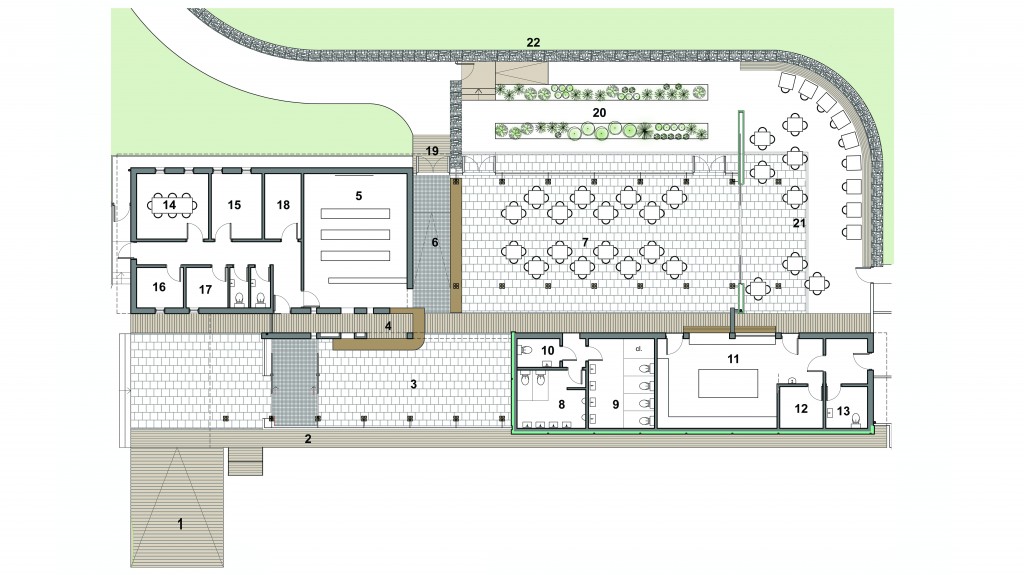
The GalaGait provide information centre as the part of the welcoming Gate to the Town. The integration between the internal circulation of the train station platform, the bus interchange, and the GalaGait give the decent sense of arrival to the town. The series of landscape platform as the roof of the building giving new axis for Galashiels to the Town Centre and the place of attraction around the town, the direct urban bridge access to promote valley, hill, river, and stunning natural landscape as well as festival place as part of Galashiels identity. The GalaGait also provide the space for communities in Galashiels to exhibit their community programs for public.

Location
With the upcoming Railway station and the bus interchange open in Town Centre, and the aspiration from the people, the site near the station is chosen. GalaGait will provide the Information through platform circulation. The moment people alight, they are enlighten. People boarded when they are onboard.With the linear and dramatic topography, the site has a potential to accommodate decent architectural design proposal as well as landscape design of the sustainable Gateway for Galashiels.
Bibliography
Anon, (2015). [online] Available at: http://www.bordersrailway.co.uk/media/13672/129713-bam-drg-md-000172.pdf [Accessed 23 Feb. 2015].
Asla.org, (2015). ASLA 2010 Professional Awards | The High Line, Section 1. [online] Available at: http://www.asla.org/2010awards/173.html [Accessed 23 Feb. 2015].
Hague, C. and Jenkins, P. (2005). Place identity, participation and planning. London: Routledge.
Lawson, B. (2001). The language of space. Oxford: Architectural Press.
Lynch, K. (1960). The image of the city. Cambridge, Mass.: MIT Press.
programmes, O., facilities, O., engagement, I. and University, H. (2015). Textiles & Design | Heriot-Watt University Scottish Borders. [online] Hw.ac.uk. Available at: http://www.hw.ac.uk/schools/textiles-design/index.htm [Accessed 23 Feb. 2015].
Rietveld, E. and Kiverstein, J. (2014). A Rich Landscape of Affordances. Ecological Psychology, 26(4), pp.325-352.
Simpsonandbrown.co.uk, (2015). Dawyck Gateway. [online] Available at: http://www.simpsonandbrown.co.uk/architecture/museums-galleries-visitor-centres/dawyck-gateway/ [Accessed 23 Feb. 2015].









Leave a comment